








OBRA NUEVA Y REFORMA / GRANADA / 2022
El proyecto Casa Montes Orientales nace del deseo de los propietarios de convertir una antigua casa de aperos de labranza vinculada a su familia (la cual ya se había reformado diez años atrás) en una casa de campo moderna y funcional donde reunir a la familia y gozar de todas las comodidades de una segunda residencia estival, sin renunciar al arraigo y los fuertes vínculos familiares que poseen con la antigua casa.
Por ello, la premisa del proyecto era crear una vivienda con grandes espacios vivideros donde poder reunir a familia y amigos en vacaciones para disfrutar del entorno privilegiado donde se ubica.
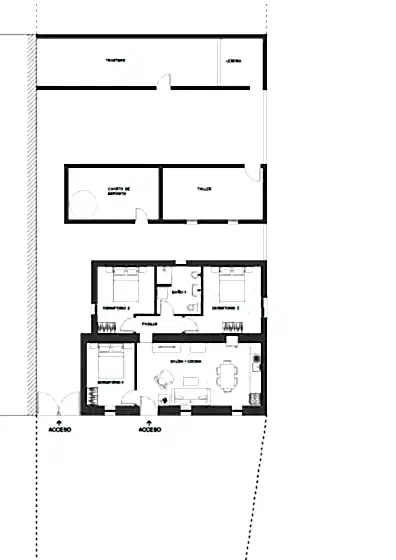
Se diseña una vivienda funcional, resultado de la redistribución de la vivienda original y la creación de una ampliación que cierra perimetralmente un gran patio central. La vivienda original alberga el acceso a la vivienda, un gran salón-cocina, un dormitorio y un baño, mientras que la ampliación está conformada por dos grandes dormitorios principales con techos abuhardillados y espacios distribuidos en dos alturas, así como un nuevo baño, una zona de instalaciones y un nuevo taller.
En el diseño destacan los altos techos inclinados de los nuevos espacios así como el uso de materiales nobles como la madera, tanto en techos como en mobiliario, aportando calidez a los grandes espacios familiares. La unión del diseño rural, la luz natural y las vistas al espectacular entorno hacen de esta vivienda un lugar único.
