Ir al contenido
  • SERVICIOS
  • PROYECTOS
  • EQUIPO
  • BLOG
  • CONTACTO
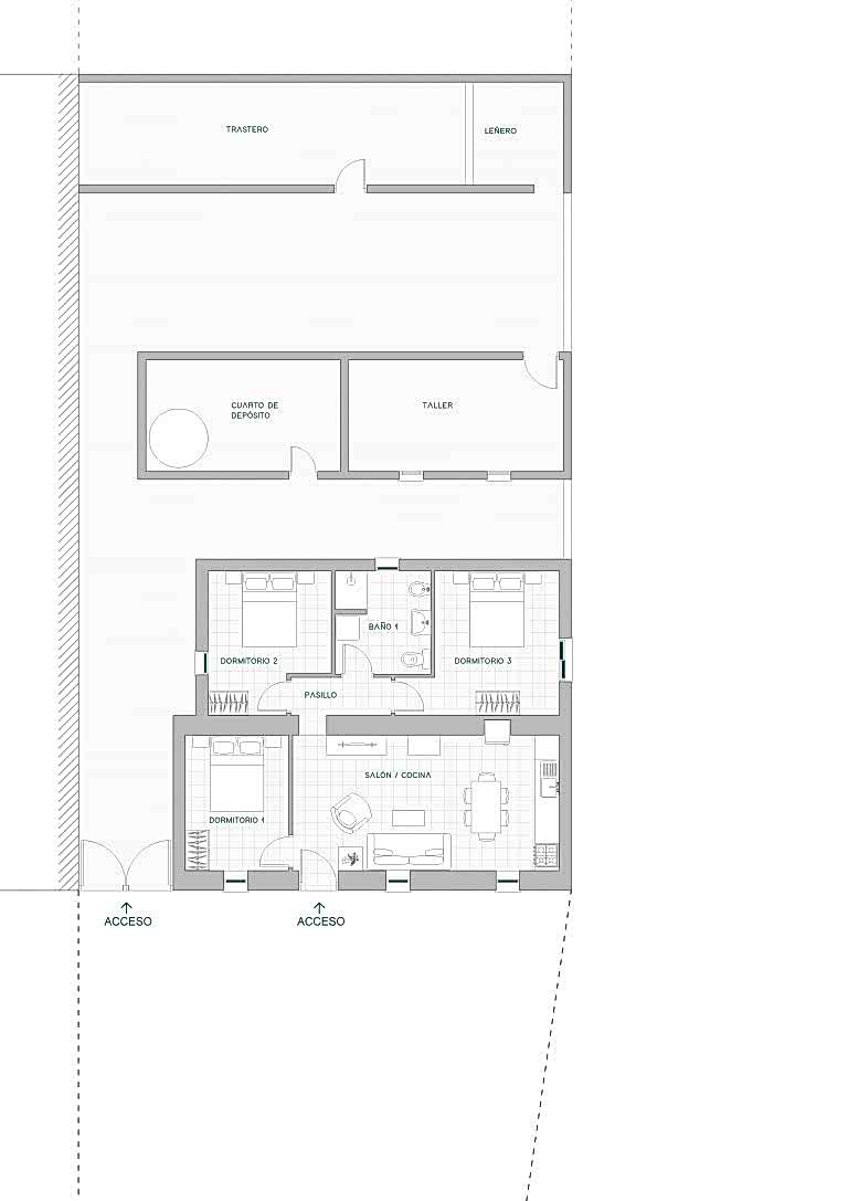
ESTADO ACTUALESTADO REFORMADO ALTILLO
Facebook Instagram Pinterest
  • AIR arquitectura Copyright 2024. Todos los derechos reservados.
  • Aviso Legal
  • Cookies
  • Política de Privacidad

Contáctanos