








OBRA NUEVA DE EDIFICIO PLURIFAMILIAR / PEAL DE BECERRO / 2020
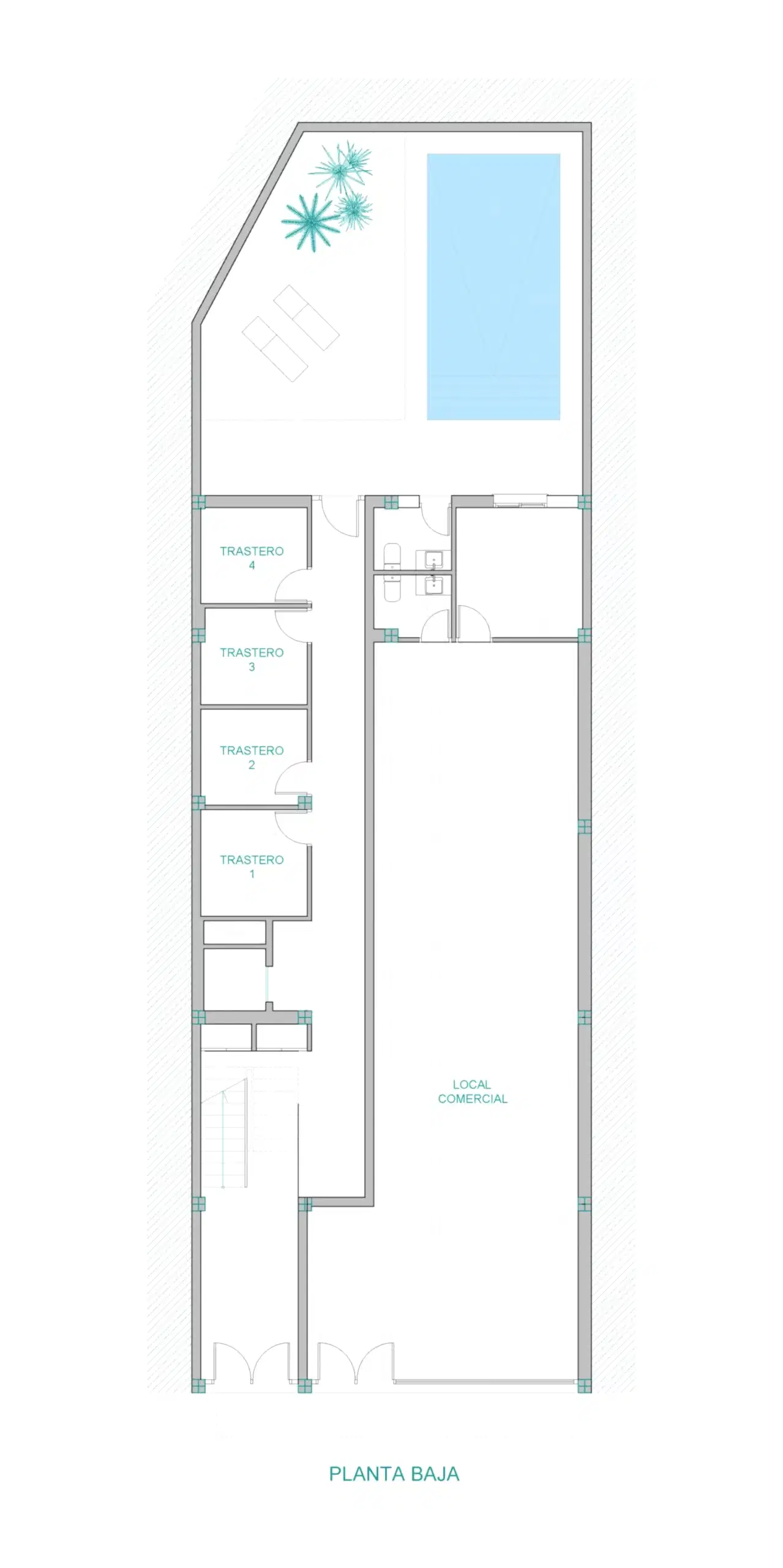
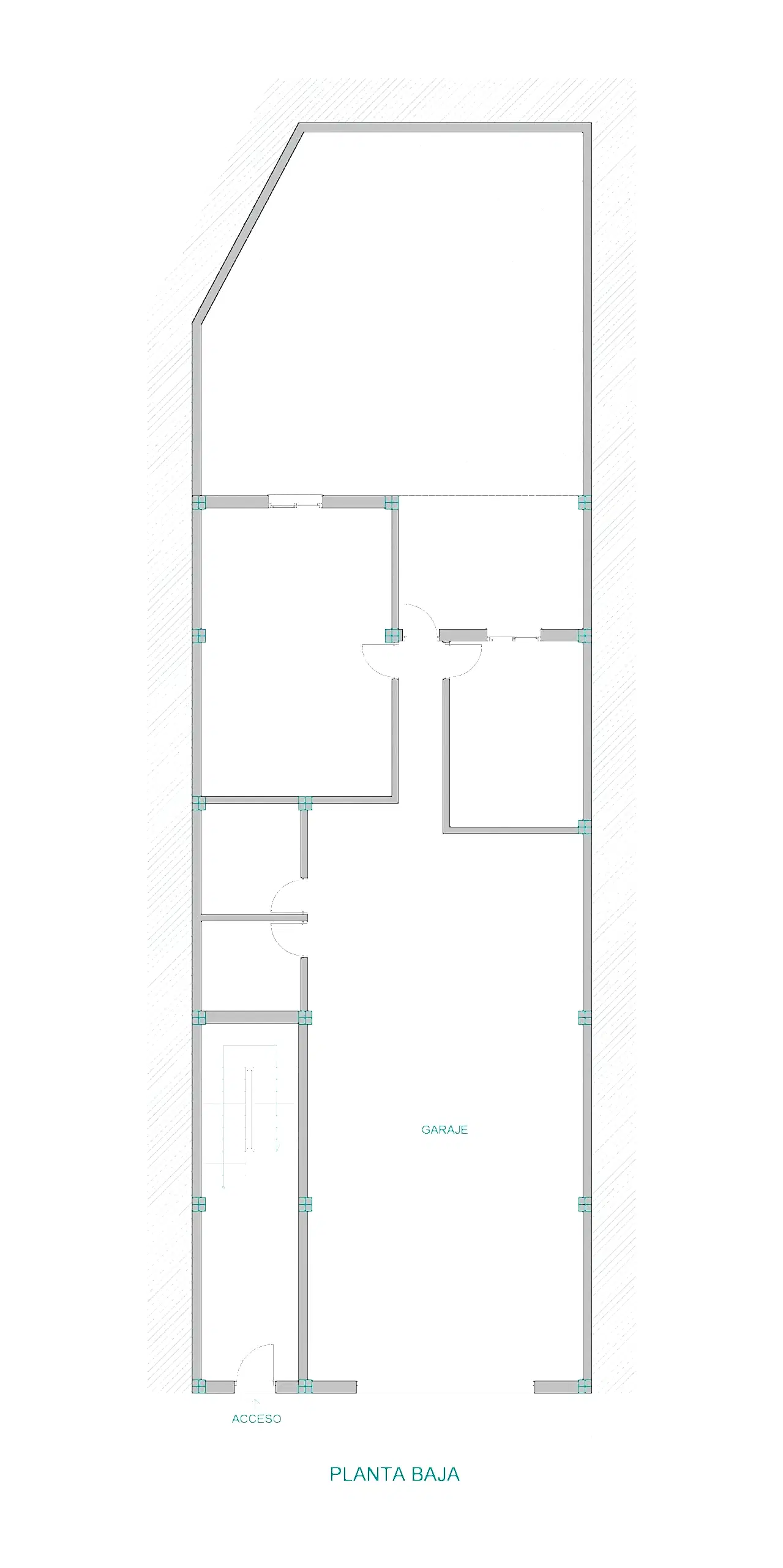
El proyecto CUATRO X DOS es un proyecto de reforma de un edifico plurifamiliar, actualmente en construcción, en Peal de Becerro (Jaén). El edificio inicialmente estaba proyectado para albergar un gran garaje en planta baja, una vivienda en planta primera y otra vivienda similar en planta segunda, ambas con grandes dimensiones y distribuciones que no se adaptan a las necesidades actuales.
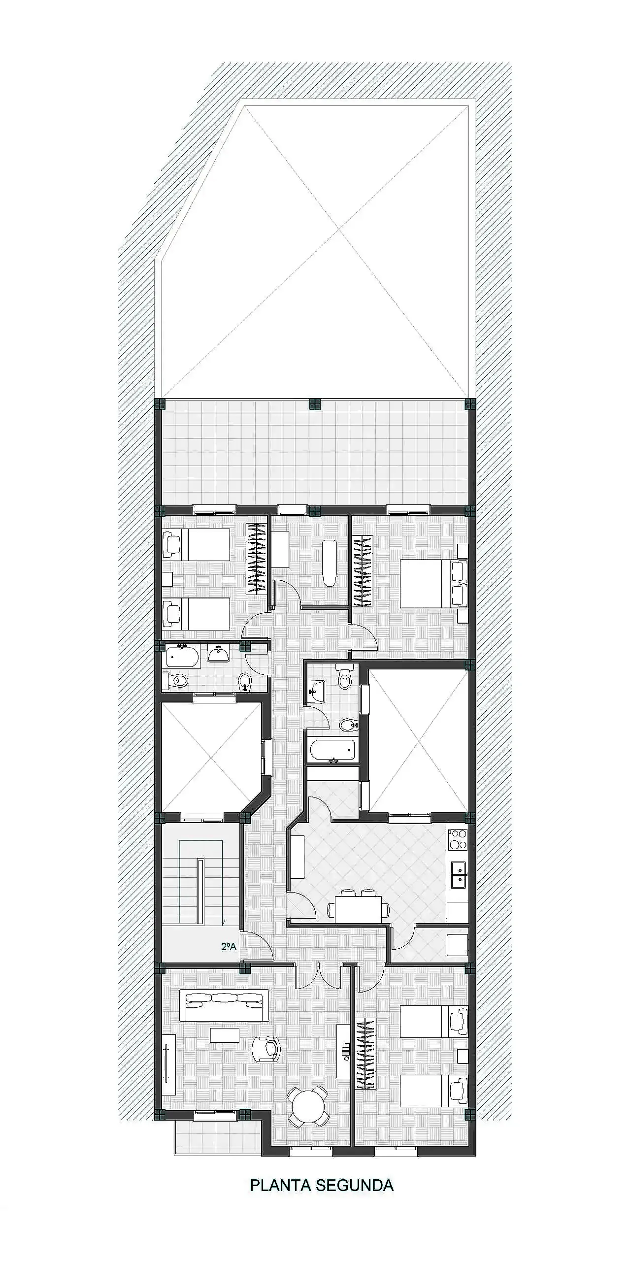
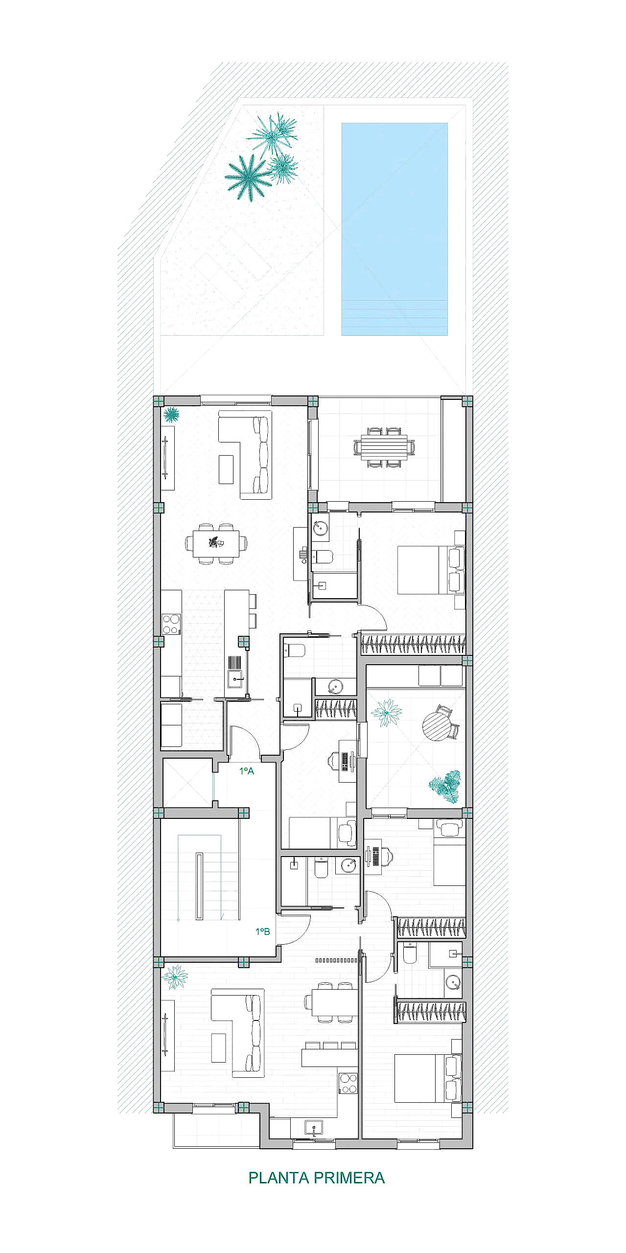
La premisa del proyecto, tal y como describe su nombre, es obtener cuatro viviendas en lugar de dos. Para ello, concebimos las viviendas de una forma más actual, donde predominan la funcionalidad y el buen diseño al cúmulo de espacios de grandes dimensiones unidos por un pasillo interminable.
Tras un exhaustivo estudio del espacio disponible, se ha conseguido obtener cuatro viviendas de 2 dormitorios y 2 baños cada una, además de hacer accesible el edificio añadiendo un ascensor.
PLANIMETRÍA
